u 智能开关状态显示控制装置
? 概述
苏州天派工程科技有限公司的智能开关状态显示控制装置具备实时动态显示一次模拟图及其相应的分合位动作状态、手车位置指示、储能指示、接地开关指示、带电显示及闭锁、温湿度显示控制、语音防误提示、多种电力参数测量(如电流、电压、有功/无功功率、功率因数、有功/无功电能等)、触头或电缆搭接头温度显示、RS-485通讯接口等功能,并可安装多种操作旋钮和转换开关,我公司提供了个性化的产品定制策略,选型时,用户总可选择到一款适合自己需求的产品和功能组合。
? 技术参数
显示:LED显示/点阵LCD全中文显示
测量精度:精度0.5级,无功电能1级(电力参数测量仅限于TP2500-C、D)
温度: ±1℃ 湿度: ±5%RH
功耗: 4VA-9VA 频率: 50/60Hz
温度范围:-40℃~85℃ 湿度范围:0~99%RH
无线测温范围:0~99℃
辅助电源:AC/DC 85~265V 功能模块:通讯接口RS-485通讯,Modbus-RTU协议
波特率: 2400-19200bpc, 默认9600bpc
继电器触点容量:5A/250VAV,5A/30VDC
环境:工作温度-10℃~+55℃ 存储温度: -30℃~+70℃
相对湿度≤93%RH,不结露、无腐蚀性气体场所 海拔≤2500m
安全:绝缘电阻≥100MΩ
交流耐压AC2KV/min
EMC电磁兼容:静电放电严酷等级III级
浪涌冲击严酷等级III级
电快速瞬变脉冲群严酷等级III级
? 功能及性能特点
1.直观的动态模拟图
2.防误语音提示
3.带电显示及闭锁及验电核相功能
4.温湿度显示及模拟控制
5.远方/就地、分/合闸、储能、照明操作
6.电力参数测量
7.断路器触头、电缆搭接头等处实时无线测温
8.支持1路RS485通讯接口,Modbos-RTU通讯协议
9.事件记录功能
10.超薄型,便于面板嵌入式安装
产品分类选型表
产品规格及尺寸mm | 产品型号 | 产品功能 | 选配件 |
状态显示仪系列 面框:139x200(mm) 深度:25mm 
| TP2300A | 一次回路模拟图、高压带电指示、带电闭锁、1~2路传感器(1~2路加热继电器、1~2路排风继电器)、标配RS-485通讯口 | ①可选配验电核相 ②加热器另配 ③可选配高压带电自检 ④可选配负载断线检测 |
TP2300B | 一次回路模拟图、高压带电指示、带电闭锁、1~2路传感器、数码显示可编程设置(1~2路加热继电器、1~2路排风继电器)标配RS-485通讯口 |
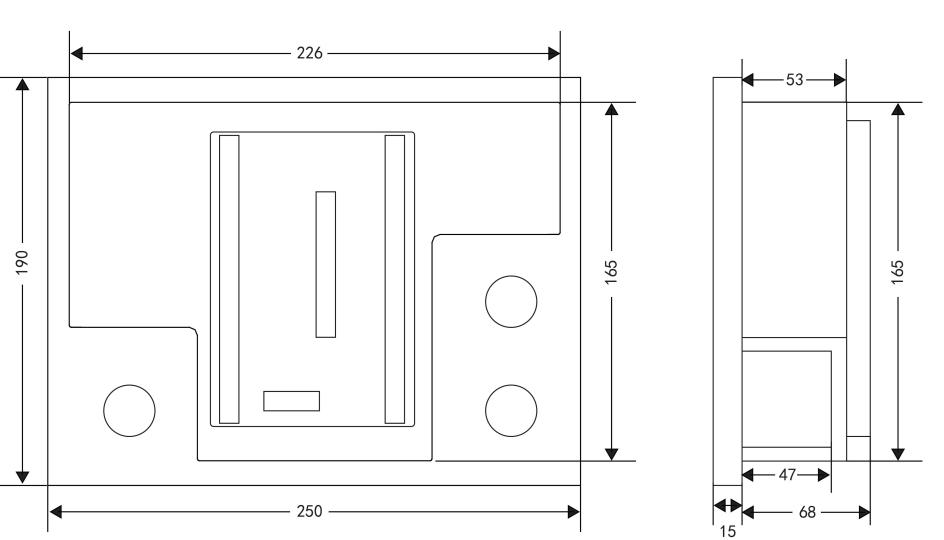
智能操控系列 面框:250x190(mm) 深度:53mm不连端子 115mm(连端子) 
| TP2500A | 一次回路动态模拟图、高压带电指示、带电闭锁、LED显示2路传感器可编程控制(2路加热继电器、2路排风继电器)、储能+远方就地+分合闸控制(可任意选配)、验电核相、智能语音防误提示、柜内照明控制 | 可选配RS-485通讯口 |

| TP2500-B | 一次回路动态模拟图、高压带电指示、带电闭锁、LCD显示2路传感器控制可编程控制(2路加热继电器、2路排风继电器)、储能+远方就地+分合闸控制(可任意选配)、验电核相、智能语音防误提示、柜内照明控制(人体感应) |
TP2500-C | 一次回路动态模拟图、高压带电指示、带电闭锁、LCD显示2路传感器可编程控制(2路传感器、2路加热继电器、2路排风继电器)、储能+远方就地+分合闸控制(可任意选配)、验电核相、智能语音防误提示、柜内照明控制(人体感应)、全功能电力参数测量、99条时间记录 |
TP2500-D | 一次回路动态模拟图、高压带电指示、带电闭锁、LCD显示2路传感器可编程控制(2路传感器、2路加热继电器、2路排风继电器)、储能+远方就地+分合闸控制(可任意选配)、验电核相、智能语音防误提示、柜内照明控制(人体感应)、全功能电力参数测量、99条时间记录、在线无线测温(可选3、6、9、12路) | ①可选配RS-485通讯口 ②可选全功能电力参数测量:三相电压、三相电流、有功功率、无功功率、功率因数、频率、计量有功电能和无功电能、2路电能脉冲输出 ③可选谐波测量 ④可选有源测温点(TP2500-D-Y) ⑤可选无源测温点(TP2500-D-W) |
? 尺寸开孔及典型接线图
⑴ 状态显示仪前面板及后面板图(TP2300-A、B)

适用于TP2300-A、B
⑵ 智能操控装置的前面板图及后面板图

⑶ 操控尺寸图

⑷操控后面板端子图


适用于TP2500- C、D(带电参量)
⑸带无线测温操控装置的应用图
